Client
Cadillac Fairview Corporation Limited
Sector
Edificios
Localización
Málaga
Complejo deportivo “El Maulí” (Antequera)
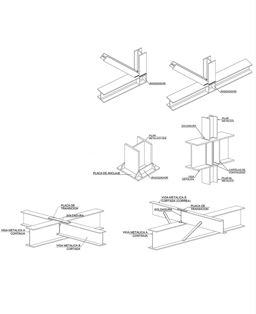
Proyecto parcial para cubrición de pista polideportiva. Cimentación y estructuras.
Engaging customized SMART building and construction technologies developed by PCL, we are implementing our award-winning Job Site Insights™ (JSI) and Eddy Solutions™ sensor technologies on this project including, for example, concrete curing sensors that accelerate pour cycle times and reduce project costs. Together with Cadillac Fairview, PCL is constructing to LEED® Platinum and WELL Building Standards and – once operational – 160 Front will embrace Cadillac Fairview’s award-winning “Green at Work” program that harnesses leading global practices to integrate sustainability into property management and operations.
